...
Skip links

Architecture

Residential Building in California

Location

California, USA

About the Project

A minimalist two-story residence positioned on California’s dramatic rocky hillside terrain. Our objective was to create a compact yet highly functional family home that seamlessly integrates with the natural stone formations while exemplifying contemporary architectural excellence and distinctive design innovation.

Dreaming of a hillside home?

Contact us for consultation about your project.

Solution

We developed a refined geometric composition featuring clean rectangular volumes that cantilever dramatically over the rocky outcroppings. The central concept — “architectural response to the earth’s power” — is expressed through the striking contrast between the building’s precise geometry and the organic forms of nature. Expansive glass surfaces and open terraces with transparent railings create the sensation of floating above the hillside. Acknowledging the complex topographical structure, we established a unique building zonation where the entrance level is positioned on the third floor, with the entire functional program flowing in a top-down configuration.

Key Features

Hillside Adaptation

Cantilever construction minimizes foundation points on the rocky terrain, incorporating specialized engineering solutions for structural protection and building integrity

Materials

The integration of light concrete, warm wood, and structural steel creates an elegant exterior aesthetic

Spatial Planning

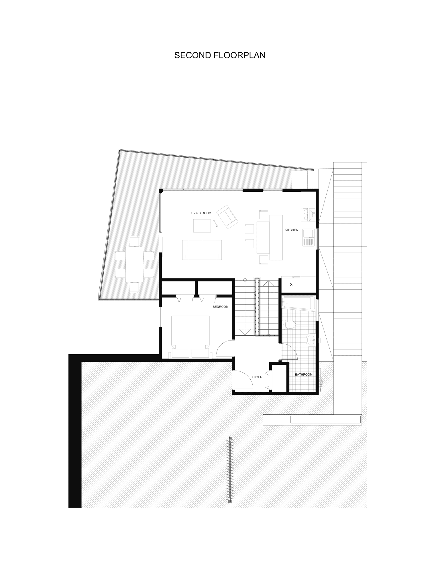
Open-plan kitchen and living areas with panoramic views on the primary level, two bedrooms and auxiliary spaces, multi-level terraces accommodating diverse recreational scenarios

Natural Integration

The building organically navigates natural stone formations, preserving the topographical integrity while establishing an intimate connection with the natural environment

Result

An exceptional residence demonstrating the architectural poetry of interaction with natural forces. The house creates a unique contemplative space where wind whispers and surrounding greenery become integral components of daily life, ensuring complete immersion in California’s natural beauty.

Dreaming of a hillside home?

Contact us for consultation about your project.