...
Skip links

Architecture

Residential House in California

Location

California, USA

About the Project

Modern three-level residence on a steep slope in California with panoramic ocean views. Our task was to create a luxurious family home that maximally utilizes the unique topography of the triangular lot and ensures beautiful views of the ocean from all rooms.

Looking for a house project that will be relevant and stylish beyond time?

Contact us for consultation about your project.

Solution

We developed a sunken courtyard level to create a multi-level building composition, where externally the building appears as a 2-story structure although it is actually 3 levels. This idea also provides coolness to the lower entrance level, creating a unique microclimate for the lower level (protecting from heat in summer and cold ocean winds in winter). The architecture combines light clinker brick and large-format glazing, creating a modern building style and ensuring panoramic views of Los Angeles from the windows.

Key Features

Vertical Zoning

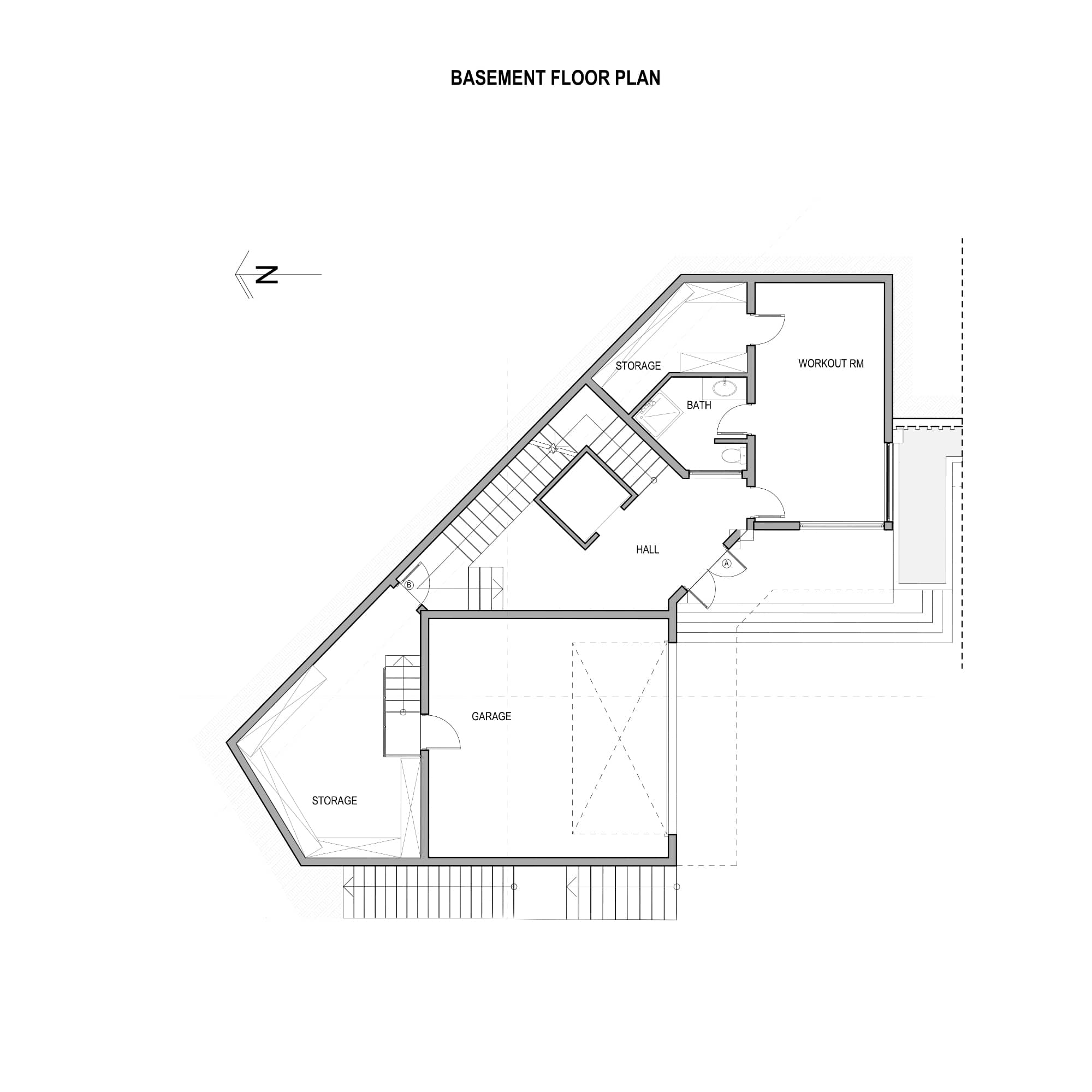
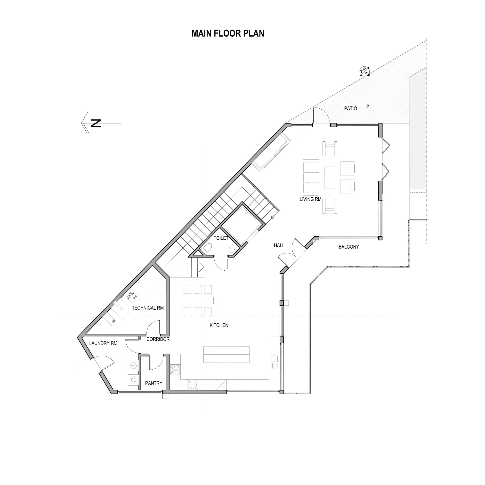
Three-story structure with basement level (garage, gym), main level (kitchen-living room), and upper level (three bedrooms)

Materials

Light clinker brick and metal elements

Planning

Open concept with maximum utilization of interesting viewpoints

Landscape

Retaining walls and terraced levels for minimal intervention in the natural slope

Result

A residential building on a slope that demonstrates masterful combination of complex engineering with elegant design. The house creates a unique living environment where each level offers a different experience of interaction with the local landscape, climate, and terrain, and provides breathtaking views of the Pacific Ocean.

Looking for a house project that will be relevant and stylish beyond time?

Contact us for consultation about your project.